技術支持單位:甘肅拓維地理信息工程有限公司
示范案例:銀川某燃氣公司埋地鋼質管道犧牲陽極陰極保護系統安裝
時間:2016年6月
(一)原理:
埋地鋼質管道犧牲陽極法陰極保護技術是將被保護的金屬結構連接一種比其電位更負的金屬或合金,該金屬或合金為陽極,依靠它的優先溶解所釋放出的電流使金屬結構陰極極化到所需的電位而實現保護,這種方法稱為犧牲陽極法陰極保護。
(二)犧牲陽極法陰極保護的優點
1、不需要外部電源;
2、對鄰近金屬構筑物無干擾或很小;
3、電流輸出雖不能控制,但有自動調節傾向,且覆蓋層不易損壞。
4、調試后,可不需日常管理;
5、保護電流分布均勻,利用率高。
(三)陽極包的選材
犧牲陽極選擇鎂陽極包的特點是比重小、電位很負、對鐵的驅動加壓很大,且單位發生的電量大。鎂的標準電極電位為-2.37V(SHE);非平衡電極電位則隨腐蝕性介質的性質而變,例如:鎂在海水中的電位為-1.5V(SCE),鎂在土壤之中的電位為1.5V至-1.6(SCE),鎂在堿溶液中的電位約為-0.84V(SCE)。鎂的電極電位與介質的PH值有密切關系,PH值在酸性范圍內,電位較負,因為生成的腐蝕產物氫氧化鎂在堿性介質中是難溶的。
(四)主要應用的規范
1、《埋地鋼質管道陰極保護電參數測試方法》SY/T0023-97
2、《埋地鋼質管道犧牲陽極陰極保護設計規范》SY/T0019-97
3、《鋼質管道及儲罐防腐工程設計規范》SY0007-99
4、《陰極保護管道的電絕緣標準》SY/T0086-95
5、《埋地鋼質管道直流排流保護技術標準》SY/T0017-96 。
(五)施工方法
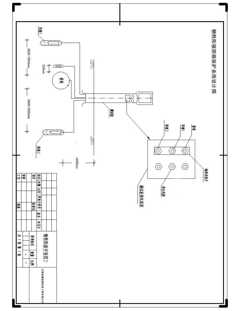
1、犧牲陽極法陰極保護施工安裝程序簡述如下:
袋裝陽極制作→陽極床定位→陽極床開挖→陽極埋設→陽極澆水浸透飽和及各參數測試→陽極通電點處理及焊接→通電點導通測試→通電點補口防腐(補口處防腐材料與管體防腐材料是匹配的) →陽極回填→標記記錄。
圖1 陽極床定位
圖2 陽極床的開挖

圖3 陽極澆水浸透飽
2、鋁熱焊使用步驟及注意事項
鋁熱焊模具是焊接電纜的專業設備,它具有放熱小,焊接牢固等特點:攜帶方便,不需要電源。鋁熱焊接施工是需要準備的工具有鋁熱焊模具、鋁熱焊劑(包含引火粉、小墊片)、打火槍,剩余其他輔助工具有拋光機、剝線鉗、錘子等。
第一步:管道表面防腐層,除銹、去污。一般管道表面有不同防腐層,首先在管線的防腐層上開一個50mm*50mm的口子,剝去防腐層,用0號砂紙打磨使之露出金屬光澤,要求表面平整、清潔、光亮、干燥、無油脂。
第二步:剝掉電纜的絕緣保護層,露出長約35mm的一段銅芯。銅芯露出的長度根據模具大小而定,規格大的模具,孔槽的長度會稍長;銅芯的長度以通過孔槽,通過圓孔為準。
第三步:將模具放在除銹區域中央,模具和被焊接鋼結構表面應該結合緊密無縫隙(很重要)。將電纜銅芯插入模具底部孔槽,調整電纜位置,確保到位。
第四步:打開頂部蓋子,將金屬墊片放入模具,堵住其內孔。金屬墊片成凹凸狀,注意:將凸出一面朝下,放入模具內孔。
第五步:打開鋁熱焊劑(大包),倒入模具內孔。用木棒將焊接壓實。
第六步:打開引火粉(小包),將引火粉撒在焊劑表面,以及模具邊沿上少許(以便打火槍引燃)。
第七步:將模具蓋蓋好,一切準備就緒后,用點火槍點燃模具邊緣的引火粉。
第八步:引火粉引燃焊劑,焊劑燃燒后把墊片融化成液體,順著內孔流下到銅芯電纜。
第九步:10秒后起模具,清渣,焊接成功。用鋼刷、毛刷等工具清除模具內殘渣,以備下次使用。
注意事項:
1.操作環境切記要通風良好,周邊5米內沒有易燃易爆物品。
2.引火粉引燃時,務必將其他焊劑和引火粉以及可能燃燒的物品遠離引燃處放置。
3.人切勿處于模具蓋正面,以免受傷。
4.焊劑及引火粉切忌受潮,受潮后應安全廢棄,切勿烘烤使用。
5.焊接時,人員不準圍聚;操作工需佩戴安全勞保工具,避免受傷。
圖4 陽極通電點處理及焊接

圖5 通電點補口防腐

圖6 通電點補口防腐效果圖

圖7 陽極回填
圖8 測試記錄

圖9 犧牲陽極系統安裝設計